中药渣的循环流化床环保处理

岳建强1,王卫良2,王小易3,张娟丽3

(1. 华润三九医药股份有限公司,广东 深圳 518000; 2. 清华大学 能源与动力工程系,北京 100084;3. 恒泰艾普高驰(北京)能源科技发展有限公司,北京 100094)

摘要:为减少中药渣堆存对环境的污染,采用循环流化床锅炉技术对中药渣进行资源化利用研究。根据中药渣基本特性,采用“动态仓储缓存-机械压滤脱水-太阳能温室干燥-循环流化床锅炉燃烧”的工艺方案,对中药渣进行处理,分析中药渣在循环流化床中燃烧锅炉设计参数、燃烧过程、床压控制、药渣含水率对炉膛温度和尾部烟道温度的影响、返灰量补充、环保指标等,并对药渣处理的效益进行评估。结果表明:中药渣作为生物质燃料进入循环流化床锅炉燃烧,产生的蒸汽再作为中药提取原料,形成一个闭合循环;该处理过程具有良好的经济效益和环保效益。

关键词:中药渣;循环流化床锅炉; 资源化利用; 循环处置

中药生产不仅消耗大量的化石能源,还产生大量的中药废渣[1]。据统计,2012年我国产生的中药废渣达3 000万t[2-3]。近年来,随着世界范围内对中医药的广泛关注及肯定,中成药研制生产规模迅速扩大,中药渣的产量逐年增加。中药渣的合理处置也成为中药生产企业最棘手的问题之一。

对规模化的中药企业而言,直接焚烧是中药渣最高效、环保的处置方式。首先,中药提取生产本就需要使用蒸汽,回收药渣作为锅炉燃料,利用其热值,可降低制药企业的生产成本;其次,药渣直接燃烧可直接减重95%以上,最终剩余灰渣小于5%,且燃烧无二次污染;再者,药渣本身属于生物质燃料,燃烧不增加温室气体,符合能源环保政策。

1 中药渣基本特性

华润三九(枣庄)药业有限公司(简称枣庄三九)是华润三九医药股份有限公司旗下最大的生产制造单元,全厂每年干药材投量约23 000 t,每年产生含水量质量分数为75%~80%的药渣约80 000 t,平均每天约240 t。每年中药提取生产使用的饱和蒸汽量约15万t。

枣庄三九中药渣类型的主要比例(质量分数):感冒灵药渣为70%,感冒清热颗粒药渣为20%,板蓝根药渣为5%,小儿感冒颗粒药渣为5%。

药渣的组分(质量分数)主要为: 岗梅(30%),三叉苦(20%),金盏银盘(13%),野菊花(10%),板蓝根、 白芷、 荆芥穗等其余10多种(27%)。

药渣形状主要包括木片块状和草茎条状。木片块状药渣粒径最小为1 cm,普遍粒径为5 cm,条状药渣长度普遍为10 cm左右,最长约30 cm。

图1所示为感冒灵颗粒的药渣。图2所示为感冒清热颗粒的药渣。

1 三九感冒灵颗粒药渣
Fig.1 Sanjiu Ganmaoling herb residue

2 三九感冒清热颗粒药渣
Fig.2 Sanjiu Ganmaoqingre herb residue

对枣庄三九的3种中药渣样品进行了工业分析,样品1为感冒灵颗粒药渣,样品2为感冒清热药渣,样品3为小儿感冒颗粒药渣,分析结果汇总如表1所示。 3种药渣干燥无灰基挥发分约占80%(质量分数,以下同)左右,干燥基灰分均小于5%。 药渣干基热值可达18.82~19.67 MJ,收到基低位热值主要受药渣全水分的影响。

1 中药渣样品工业分析

Tab.1 Proximate analysis of herb residue

检验项目样品1样品2样品3全水/%43.5034.3053.50空干基水分/%3.862.423.61干燥基灰分/%3.554.231.14干燥无灰基挥发分/%82.8480.9784.50固定碳/%15.9016.2014.90全硫/%0.060.080.08干基高位热量/(MJ·kg-1)19.8319.1019.75收到基低位热量/(MJ·kg-1)9.2510.697.15

2 中药渣处置工艺系统

采用“动态仓储缓存-机械压滤脱水-太阳能温室干燥-循环流化床锅炉燃烧”的工艺方案对枣庄三九中药渣进行处置。

初始含水75%~80%(质量分数,下同)的中药废渣进入收料仓缓存,经仓底皮带输送至螺旋压滤机,压滤脱水至含水55%左右,压滤后的中药渣经皮带输送至太阳能温室进行干燥,太阳能温室内布置卸料机构、摊铺布料设备来实现中药渣的布料、翻抛及收料功能。温室干燥系统除了以太阳能作为热源,还回收利用厂区废热、余热来保证在阴雨天也能连续干燥。温室顶部配置通风系统、喷淋系统,实现室内循环通风,室外自动清洗功能,温室内还配置了监测系统进行温度湿度的实时监测。中药渣的含水率经干燥环节可降低至40%以下。

干燥后的药渣进入循环流化床锅炉燃烧,产生0.4~0.7 MPa的饱和蒸汽压,供应制药生产线。整套工艺组成一个闭合循环利用系统,如图3所示。

3 中药渣在循环流化床中的燃烧

中药渣含水率高、挥发分多、热值低,与酒糟、秸秆等生物质类似,运行经验表明,这类生物质采用层状燃烧难以取得较好的燃烧效果[4]

3 中药渣处置系统工艺流程图
Fig.3 Processes of herb residue disposal system

循环流化床是一种清洁燃烧技术,燃料适应性极其广泛[5]。 多流程卧式循环流化床是在传统循环流化床技术基础上开发出的一种更加适合生物质燃料特性的中小型工业锅炉[6],其“三床两返多流程”的独特架构,使其对高水分、 低热值、 粒径范围较大的燃料有较高的燃烧效率,该炉型在烟梗、 玉米芯、 稻壳、 咖啡渣等生物质废渣领域已有较多工程应用[7-8]

3.1 锅炉设计参数

枣庄三九热力系统配置了2×20 t/h多流程卧式循环流化床锅炉,表2为锅炉主要设计参数。

2 20 t/h循环流化床锅炉设计参数

Tab.2 Main design parameters of 20t/h CFB boiler

名称1#炉DHX20-1.25-MZ2#炉DHX20-1.25-AII额定蒸发量/(t·h-1)1818最大蒸汽压力/MPa1.251.25饱和蒸汽温度/℃193.4193.4设计给水温度/℃20104冷风温度/℃2020热风温度/℃90160排烟温度/℃145169锅炉设计效率/%8585.5

与传统的立式循环流化床锅炉相比,多流程循环流化床锅炉将单级炉膛改为三级炉膛,将一级灰循环改为两级灰循环,将高温分离改为中温分离。

卧式三级炉膛,两级折返燃烧,与立式炉型相比,可增加60%炉膛高度,使挥发分的燃烧时间加长。两级物料的循环结构可进一步降低飞灰含碳量。飞灰可燃物低于3%。燃料燃烧更为充分,适应性较好。同时,锅炉采用中温分离,分离温度约500 ℃左右,避免了分离器的结焦[9-10]

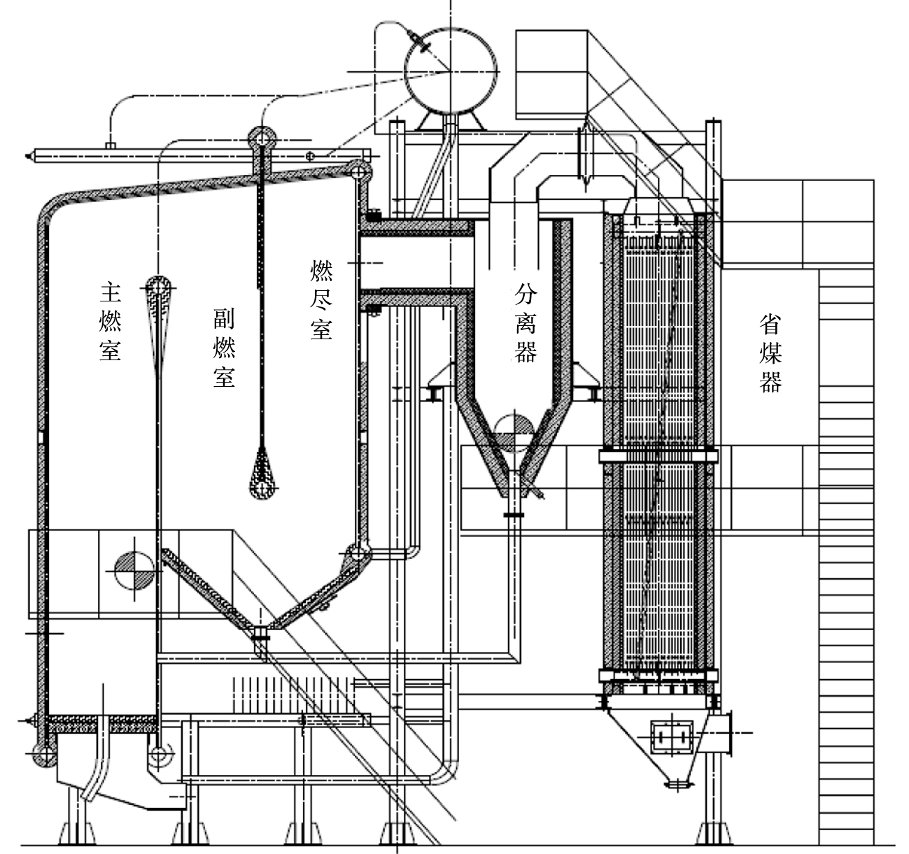
锅炉炉膛采用水冷壁结构,尾部省煤器管束采用顺列布置,并适当加大节距,设计上减轻省煤器尾部积灰的同时也有利于清灰操作的现场实施。图4为卧式循环流化床的结构示意图。

3.2 中药渣燃烧过程

循环流化床锅炉以灰渣固体颗粒为床料,药渣进入炉膛后,首先经历干燥阶段,水分被蒸发出,炉内良好的气-固混合特性使药渣被迅速混合加热,当温度达到250 ℃左右时,挥发分析出,着火。

生物质的挥发分含量高,一般都超过70%[11]。挥发分析出燃烧后,燃料中的固定碳开始燃烧释放出更多热量。炉内未燃尽的燃料颗粒随后被捕捉下来循环至炉膛继续燃烧,一级回灰温度约为700 ℃,二级回灰温度约500 ℃,较低回灰温度可使密相区的温度控制在850 ℃左右,从而实现低床温运行,有利于污染物控制,防止炉膛内结焦。床内传热系数受物料粒度浓度影响较大,受风速影响较小[12]

锅炉省煤器入口前烟气温度约为500 ℃,低于碱金属的黏结沉积温度。

3.3 药渣燃烧时床压的控制

卧式循环流化床炉膛压降主要发生在主燃室,占总压降的90%左右[13]

4 卧式循环流化床结构示意图
Fig.4 Schematic diagram of horizontal circulating fluidized bed structure

不同药渣种类粒度不同,堆积密度也存在一定差异。枣庄三九主要的2种药渣为感冒灵和感冒清热药渣,感冒灵药渣80%为木质类,感冒清热药渣80%为草茎类。

相同含水率35%条件下,感冒灵和感冒清热药渣的堆积密度分别约为:345、 275 kg/m3

在感冒灵药渣燃烧过程中,锅炉密相区床压控制在6~7 kPa,床层流化良好,无结焦风险。 在感冒清热药渣燃烧时,床层压力则只需控制在4~4.5 kPa,床层即可流化良好,此时鼓风机频率较感冒灵药渣燃烧时可降低约3 Hz,风机电耗降低。图5为感冒灵和感冒清热药渣燃烧时床压波动曲线。

3.4 药渣含水率对温度的影响

3.4.1 对炉膛温度的影响

干燥后的中药渣含水率一般为35%~43%,在锅炉实际运行过程中发现:随着药渣含水率的增加,炉膛温度呈现下降趋势。图6显示了床层密相区温度与炉膛出口温度随药渣含水率增加的变化趋势,药渣水分由35%增加至43%时,炉膛温度由900 ℃降低至820 ℃左右,下降约80 ℃。由于药渣挥发分含量较高,易着火,因此在较低床温下,药渣仍能维持稳定的燃烧。最佳的工况为控制药渣的水分不高于40%,将炉膛温度控制在850 ℃左右。

5 感冒灵和感冒清药渣燃烧时床压波动曲线
Fig.5 Bed pressure curves of Ganmaoling herb residue and Ganmaoqingre herb residue during burning process

3.4.2 对尾部烟道温度的影响

药渣中的水分随燃烧过程的进行最后都会以气态形式排出锅炉,所以,随药渣水分的增加,锅炉总烟气量略有增加,加之主炉膛出口烟气温度降低,这些因素会导致尾部受热面的吸热能力下降,不同药渣含水率条件下,锅炉尾部烟道温度变化曲线如图7所示。从图中数据可以看出,排烟温度略微地升高了5~7 ℃。

6 床层密相区温度与炉膛出口温度
随药渣含水率增加的变化趋势
Fig.6 Change trend of dense zone temperature of bed and outlet temperature of furnace with increase of moisture content of herb residue

7 尾部烟道温度随药渣含水率增加的变化趋势
Fig.7 Change trend of temperature in boiler tail flue with increase of moisture content of herb residue

3.5 药渣燃烧时返灰量的补充

中药渣物料灰分含量较少,实际运行中经常会出现循环回灰量较少的现象。

回灰量较少时,主炉膛密相区温度会升高,为了控制床温不超温运行,需要减少锅炉进料量,锅炉负荷能力下降。密相区温度上升的同时,还会造成氮氧化物NOx的生成量增加,为实现NOx达标排放需同时增大炉内尿素脱硝剂的使用量。

循环灰量较少时,可适当补充细床料,使锅炉循环灰量处于设计的合理范围内。

密度较小的中药渣飞灰不宜被旋风分离器捕捉,易造成尾部积灰,积灰严重时,尾部受热面吸热性能也会变差,造成锅炉排烟温度有所增加,所以在锅炉运行中要加强吹灰,控制排烟温度低于160 ℃是较为经济的。

3.6 药渣燃烧的环保指标

山东省枣庄地区工业锅炉超低排放指标为:粉尘≤10 mg/m3; SO2≤50 mg/m3; NOx≤100 mg/m3,氧含量基准9%。

草木类中药废渣含硫量很低,枣庄三九多数药渣含硫量小于0.1%,燃烧时产生的二氧化硫很少,在锅炉实际运行过程中不使用脱硫剂,仍然可达到超低排放标准。

基于此推断,在采用循环流化床燃烧方式处理中药废渣时,即使药渣的种类较为特殊,初始含硫量较高,配合炉内喷钙脱硫也可实现达标排放。 循环流化床锅炉运行床温850~950 ℃,是最佳的脱硫温度,钙硫比为1.5~2.0时,脱硫率可达85%~95%。

氮氧化物排放低是循环流化床锅炉另一个优势。850 ℃炉膛温度下,空气中的氮生成NOx的部分较少。通过合理控制燃烧过程中的过量空气系数、分级配风还可以抑制燃料中的氮转化为NOx,较适宜一、二次风配比为1.5 ∶1[14]

枣庄三九中药渣在循环流化床锅炉燃烧时初始NOx一般不高于200 mg/m3,经过SNCR工艺处理即可实现NOx超低排放。

烟气除尘采用布袋除尘工艺,滤袋采用超细纤维滤料并做PTFE覆膜处理,除尘效率可达99.99%。

图8为锅炉烟气在线监测显示的枣庄三九2019年1—12月SO2、 NOx、 粉尘3种污染物因子月平均折算浓度数据,其值均远低于要求限值。全年统计数据还显示:2019年SO2全年排放量为0.009 2 t,NOx全年排放量为7.69 t,粉尘全年排放量为1.18 t。

8 2019年烟气在线监测统计的月平均折算浓度数据
Fig.8 Averaged corrected concentration data for boiler gas pollution factors from on-line monitors in every month of 2019

4 药渣处置的效益

中药渣的处置不仅实现固废资源化利用,且节约化石燃料。

枣庄三九每年产生含水率为75%的湿药渣80 000 t,干燥后水分降低为35%,干药渣量30 000 t,干燥后的药渣约按照低位热值9.62 MJ/kg估算,相当于0.32 t标准煤,即每年可替代标准煤约10 000 t。

中药渣燃烧处置为枣庄三九获得的经济效益主要来源于2方面:节约的燃料成本和药渣外运费。

1) 原厂区药渣一直外运处理,系统投运后,药渣自产自销不再外运出厂,按照企业湿药渣外运费60元/t,湿药渣每年80 000 t计算,每年节省药渣外运费用480万元。

2)枣庄地区生物质散料平均价格500元/t,30 000 t干药渣量每年可减少锅炉燃料采购费用1 500万元,扣除药渣的干燥成本500万元,可为枣庄三九净节省1 000万元。上述2项每年共计可为企业节省1 480万元。

5 结论

1)“仓储缓存-机械压滤脱水-太阳能温室干燥-循环流化床锅炉燃烧”工艺是利于中药企业长远发展的环保策略。可将中药渣转变为生物质燃料,燃烧产生的蒸汽供给中药提取生产线。

2)循环流化床锅炉燃烧系统运行稳定,高效节能,具有显著的环境效益和经济效益,是中药制药企业系化、 规模化、 综合化、 资源化利用中药废渣的有效方式。

参考文献(References):

[1]MENG X Y,WEN Z G,QIAN Y,et al. Evaluation of cleaner production technology integration for the Chinese herbal medicine industry using carbon flow analysis[J]. Journal of Cleaner Production,2017,163: 49-57.

[2]谭显东,王向东,黄建盛. 中药渣资源化技术研究进展[J]. 中成药,2010,32(5): 847-848.

[3]吴东丽,肖相政,李岳彬. 中药渣资源化利用现状[J]. 广东化工,2015,42(14): 103-105.

[4]YAO C,DONG L,WANG Y,et al. Fluidized bed pyrolysis of distilled spirits lees for adapting to is circulating fluidized bed decoupling combustion[J]. Fuel Processing Technology, 2011, 92(12): 2312-2319.

[5]岳光溪,吕俊复,徐鹏,等. 循环流化床燃烧发展现状及前景分析[J]. 中国电力,2016,49(1): 1-13.

[6]初雷哲,张衍国,康建斌. 多流程循环流化床技术及其在生物质锅炉中的应用[J]. 生物产业技术,2019(5): 15-21.

[7]别如山,黄兵,宋兴飞, 等. 酒糟在流化床中燃烧特性试验研究[J]. 动力工程学报,2013,33(6): 479-483.

[8]刘勇军,周国生,崔建军,等. 物料掺烧对燃烟梗卧式循环流化床锅炉的影响[J]. 节能技术,2017,35(4): 309-312.

[9]张衍国,勾宏图. 卧式循环流化床锅炉技术简介及应用[J]. 锅炉制造,2008(1): 5-7.

[10]勾宏图,张衍国. 节能环保型卧式循环流化床锅炉技术[J]. 节能与环保,2008(8): 29-30.

[11]黄兵. 中药渣在流化床中燃烧特性研究[D]. 哈尔滨: 哈尔滨工业大学,2013.

[12]丛堃林,李清海,韩峰,等. 多流程卧式循环流化床气固流动的传热特性[J]. 燃烧科学与技术,2018,24(4): 315-322.

[13]向杰,李清海,张衍国,等. 卧式循环流化床锅炉压降和颗粒体积分数分布[J]. 动力工程学动力工程学报,2014,34(4): 253-259,266.

[14]李清海,周晓彬,陈庚,等. 卧式循环流化床锅炉燃烧的数值模拟[J]. 清华大学学报(自然科学版),2013,53(3): 353-357.

Utilization of traditional Chinese herb residue based on circulating fluidized bed

YUE Jianqiang1WANG Weiliang2WANG Xiaoyi3ZHANG Juanli3

(1. China Resources Sanjiu Pharmaceutical Co., Ltd., Shenzhen 518000, China;2. Department of Energy and Power Engineering, Tsinghua University, Beijing 100084, China;3. Hengtai AipuGaochi (Beijing) Energy Science and Technology Deveploment Co. Ltd., Beijing 100094, China)

Abstract:In order to avoid the pollution to the environment caused by the traditional Chinese herb residue, the technology of circulating fluidized bed (CFB) was used to recycle it in a resource-based way. According to the basic characteristics of Chinese herb residue, the industrial solution of stored in mixing bin-filtered by mechanical pressure-dried by solar thermal energy in greenhouse-burned by circulating fluidized bed boiler was selected, and important burning process data was analyzed at the same time, including boiler design parameters, bed pressure control parameters, change trend of temperature in boiler furnace and tail flue with moisture content of herb residue, the effective measure of adding ash to adjust burning process, the environmental indicators and so on. Finally, benefits of this Chinese herb residue treatment were evaluated. The results show that Chinese herb residue is burned as bio-fuel in CFB boiler and produce steam for herb extraction producing, forming a reasonable closed recycle well.

Keywords:Chinese herb residue;circulating fluidized bed boiler;resource utilization;recycle

中图分类号:TQ460.9

文献标志码:A

文章编号:1008-5548(2020)04-0059-06

doi:10.13732/j.issn.1008-5548.2020.04.010

收稿日期: 2019-12-25,修回日期:2020-03-01

第一作者简介:岳建强(1968— ),男,高级工程师,研究方向为制药工程。E-mail:2696519821@qq.com。

通信作者简介:张娟丽(1989—),女,硕士,研究方向为热能与动力工程。E-mail:437149012@qq.com。